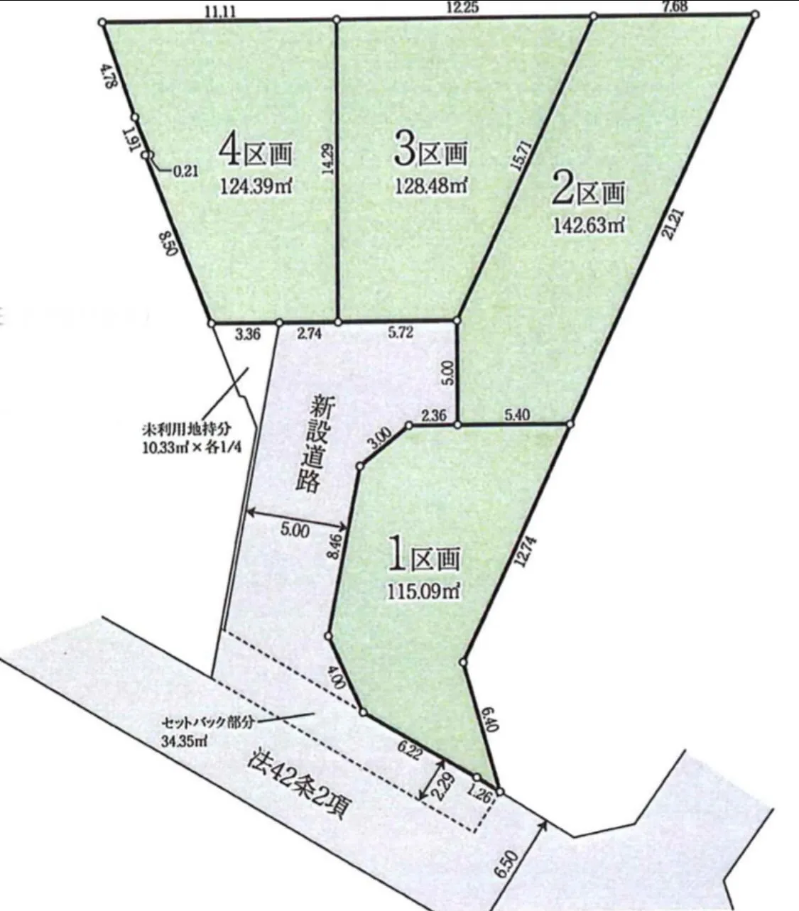
【八王子市大和田町 売地 全4区画 】
2025/06/28
【八王子市大和田町 売地 全4区画 】
今週末より八王子市大和田町にて、売地全4区画の現地販売会を開催中です。
お好きなハウスメーカーで建築可能です♪
自然を感じられる環境で平坦地の閑静な住宅街の立地です。
現地販売会開催場所:八王子市大和田町3-11-9付近
また、キャンペーンも同時開催いたします。参加された方には、限定特典をご用意しておりますので、お見逃しなく。現地のスタッフが、皆様のご質問に丁寧にお答えし、ご満足いただけるようサポートいたします。
ぜひこの機会に、八王子市大和田町の売地をご覧にお越しください。
皆様のご来場を心よりお待ちしております。
#八王子
#土地
#現地販売会
#注文住宅
#現地販売会
#キャンペーン
#特典
#新生活
#ハウスメーカー
#ファミリー向け
#大和田
#住まいの選択
#新しい暮らし
#環境良好
#夢のマイホーム
#快適な住まい
#住まい探し
#八王子市
#不動産
#家族の時間
#居住空間
#安心の暮らし
#八王子不動産
#未来の住まい
#住まいの夢
#暮らしをデザイン










